طراحی نقشه فاز دو معماری، موضوع این مقاله از سایت مهندسین مشاور سپنتا میباشد، هر پروژه معماری در حالت طبیعی شامل ۳ فاز است، این سه فاز شامل: فاز صفر، فاز یک و طراحی فاز دو معماری میشوند، در ادامه به توضیح هر بخش به طور مفصل خواهیم پرداخت، با ما تا انتهای مقاله جهت آشنایی کامل با طراحی نقشه فاز 2 همراه باشید.
هلدینگ ساختمانی سپنتا کلیه خدمات طراحی فاز دو معماری و همچنین دیگر فاز های معماری را در انجام پروژه های معماری و عمرانی با بالاترین کیفیت به انجام میرساند، برای کسب اطلاعات بیشتر با ما در ارتباط باشید.
طراحی نقشه فاز 2
قبل از اینکه تک به تک فازهای نقشه کشی را توضیح بدهیم، باید بدانید که طراحی نقشه فاز 2 صرفا برای معماری نیست و در شاخه های دیگری از ساخت و ساز مثل تاسیسات و مکانیک هم استفاده میشود.
فاز صفر معماری چیست ؟
به طور معمول فاز صفر معماری از چند بخش تشکیل شده: آماده سازی و مطالعات مربوط به شناسایی و بررسی پروژه طراحی معماری بر اساس اهداف تعیین شده و مطابق ضوابط و استانداردهای مورد عمل و اقلیم، الزامات شرایط محیطی و قوانین و استانداردها و تهیه گزارش کامل توجیهی از جمله این موارد میباشد. به بیان دیگر فاز صفر معماری کلیه نقشه ها با رعایت نوع کاربری ها بصورت پروتوتایپ تهیه و همراه با مطالعات اولیه به تایید کارفرما می رسد.
فاز یک معماری چیست ؟
بعد از اینکه فاز صفر پروژه معماری به خوبی انجام شده و پروژه از منظر های محتلف مورد بررسی و آنالیز قرار گرفت ، کار به طراحی پلان معماری سازه مورد نظر میرسد به این نقشه هایی که ویژگی های معماری ساختمان که در آنها روابط و اطلاعات محدودی از جمله نوع استقرار بنا و روابط فضا ها و مشخصات نمای ساختمان را دارا هستند نقشه فاز یک معماری میگویند . فاز یک معماری پیاده کردن اطلاعات کسب شده فاز صفر در قالب ارائه طرح ها و نقشه های اولیه یا نقشه های فاز یک می باشد و این نقشه ها که شامل پلان ها ، نماها و مقاطع می باشند برای ارایه جهت اخذ مجوز های لازم برای ساخت به مراکز صدور پروانه اعم از شهرداری ها یا بخشداری ها کار گرفته می شوند.
طراحی فاز دو (۲) معماری چیست ؟
خوب است بدانید که نفشه کشی اصلی مربوط به هر ساخت و سار در فاز دوم انجام میشود، فاز صفر و یک پروژه معماری بیشتر نقشه اماده سازی را دارند و بخش اصلی کار در فاز دو میباشد، نقشه فاز دو معماری بر اساس مقررات ملی ساختمان و ضوابط سازمان مدیریت برنامه و بودجه تهیه می شود، نقشه های فاز ۲ هستند که تمامی اطلاعات و جزئیات اجرایی را دارا هستند و برای اجرای پروژه ها بکار گرفته میشوند و از همین رو نیز دارای اهمیت بیشتری هستند. در این نوع از نقشه ها مهندسین به طراحی نقشه های سازه ، مکانیک و برق می پردازند .
مطالعه بیشتر : بازسازی آشپزخانه

نقشه های فاز 2 معماری شامل چیست؟ لیست نقشه های فاز 2 معماری
نقشه فاز ۲ شامل ترسیم و ارایه نقشه هایی اجرایی ساختمان جهت اجرا یا ارائه به پیمانکاران می باشد. در ادامه برای شما لیستی از نقشه های اجرایی فاز دو معماری را آورده ایم :
- فهرست نقشه های فاز دو
- پلان تاسیسات مکانیکی
- پلان سقف کاذب
- کدگذاری
- پلان نعل درگاه
- پلان تاسیسات الکتریکی
- برش های فاز دو
- طراحی نمای ساختمان
- جدول نازک کاری
- پلان اندازه گذاری
- پلان فونداسیون و کرسی چینی
- پلان تیر ریزی
- سایت پلان
- پلان فاز دو بام
- بزرگنمایی سرویس بهداشتی
- بزرگنمایی پله
- تیپ بندی در و پنجره
- پلان کفسازی و مبلمان
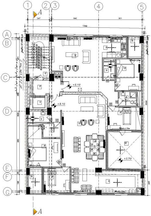
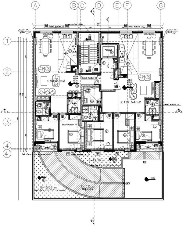
نمونه پلان فاز 2 معماری
تفاوت نقشه فاز یک و نقشه فاز دو معماری
تا این قسمت از مقاله توضیح کاملی از نقشه های ۳ فاز معماری را برای شما عزیزان ارائه دادیم ، حال به شرح تفاوت های نقشه فاز یک و فاز 2 به صورت اختصاصی میپردازیم ، نقشه های فاز یک معماری دارای اطلاعات محدودی هستند که فقط در حد معرفی و آشنایی با پروژه اطلاعات دارند اما نقشه های فاز ۲ معماری دارای تمامی اطلاعات مربوط به سازه می باشد که از این اطلاعات میتوان به اطلاعات اجرایی پروژه مثل ستون گذاری ،جنس دیوار ها و مصالح کف سازی اشاره کرد، در تعریف کلی میتوان گفت که نقشه های فاز ۲ تمامی جزئیات اجرایی پروژه معماری را دارا هستند. نقشه فاز ۲ همان نقشه هایی هستند که برای اجرایی و نهایی کردن پروژهای معماری استفاده میشوند.
نکته : نقشه های فاز۲ از دو بخش مجزا تشکیل شده اند : نقشه های فاز دو معماری و نقشه های فاز دو سازه
نقشه فاز ۲ سازه
طراحی و محاسبه نقشه های سازه ساختمان بسیار مهم هستند، زیرا از یک سو با جان و مال انسان ها در ارتباط است، از سوی دیگر حساسیت های بسیاری در این رابطه در مهندسین مشاور، شهرداری و نظام مهندسی وجود دارد. مسئله مهم دیگر نیز تاثیرات گاها چشم گیری است که بر هزینه های ساخت خواهد داشت. تمام این ها باعث می شوند تا نقشه های سازه یکی از مهمترین قسمت ها در تهیه نقشه ساختمان باشند.
پیش از تهیه نقشه فاز دو معماری، تهیه نقشه های سازه ضروری می باشد، معمار جهت تهیه نقشه های اجرایی می بایست نقشه های سازه را با پلان های فاز یک تطبیق و به تهیه نقشه فاز ۲ بپردازد.
نقشه فاز ۲ معماری
نقشه های فاز دو معماری و هرچه مرتبط با آن است توسط مهندس معمار تهیه میشود و اطلاعاتی از جمله مشخصات مصالح و جزئیات اجرایی بخش های مختلف ساختمان که اجرای پروژه لازم و ضروری هستند در نقشه ذکر میشود.
بهترین نرم افزار برای ترسیم نقشه فاز ۲ چیست؟
ترسیم نقشه های فاز ۲ و اجرایی یکی از مواردی است که به نرم افزار حرفه ای مخصوص طراحی اتوکد نیازمند می باشد یعنی برای طراحی پلان های فاز ۲ باید بتوانید به صورت حرفه ای با نرم افزار اتوکد نقشه کشی کار کنند و با تمامی قسمت های آن آشنا بوده و در ترسیم فنی را در نیز در داخل فنون خود داشته باشند.
مطالعه بیشتر: معرفی بهترین نرم افزارهای معماری
رسم پلان و نقشه فاز ۲ اجرایی
اگر بخواهید به ترسیم نقشه های فاز دو بپردازید در ابتدا باید طرح کلی مجموعه مورد نظر را ترسیم نمایید یعنی به طراحی فاز یک بپردازید و در ادامه با تایید این طرح توسط مهندسین و عوامل اقدام به طراحی پلان فاز ۲ معماری سازه گرفته شود و در ادامه ترسیمات دیگر برای اجرایی کردن پروژه صورت گیرد . طرحی نقش فاز ۲ نیازمند داشتن تخصص در زمینه کار با اتوکد و ترسیمات فنی و داشتن اطلاعات کامل در رابطه با سازه های مختلف می باشد.
آموزش طراحی نقشه دو فاز معماری

بیشتر بخوانید: طراحی دکوراسیون داخلی
جدیدترین مصوبه های مربوط به نقشه فاز 2
کنترل طراحی نقشههای فاز ۲ برای استمرار نظارت بر مطابقت تهیه نقشهها با اصول و ضوابط فنی، ارتباطی به ارجاع کار به ناظر ندارد و این دو موضوع در دو فرآیند مجزا پیگیری خواهد شد.
کنترل نقشههای فاز ۲ ازاینپس از طریق شرکتهای طراحی با رتبه (گرید) بالای تعیین صلاحیت شده توسط نظاممهندسی انجام خواهد شد و بدینصورت روند بوروکراتیک بررسی در نظاممهندسی قطع خواهد شد.
تأیید نقشههای فاز ۲، اعم از بررسی کنترلرها و اعمال اصلاحات توسط طراح حداکثر یک ماه خواهد باشد. پس از انقضای این زمان یکماهه، پرونده روند صدور پروانه را بر اساس آخرین ویرایش نقشهها طی خواهد کرد و در صورت تغییر نقشههای نهایی در درخواست تغییر نقشه لحاظ خواهد شد.
خدمات نقشه فاز دو هلدینگ ساختمانی سپنتا
شرکت فنی مهندسی معماری سپنتا کلیه خدمات زیر را در انجام پروژه های معماری و عمرانی با بالاترین کیفیت به انجام میرساند ، برای کسب اطلاعات بیشتر با ما در ارتباط باشید.
- خدمات فاز صفر معماری
- خدمات فاز یک معماری
- خدمات فاز دو معماری
- خدمات فاز دو سازه
- خدمات فاز دو مکانیک و الکتریک

