نقشه کشی برق و مکانیک یک امر بسیار مهمی در ساختمان سازی است، در این مقاله هلدینگ ساختمانی سپنتا قصد دارد تا شما را با طراحی نقشه برق و مکانیک و انواع آن آشنا سازد، پس با ما همراه باشید.
نقشه برق و مکانیک
طراحی نقشه برق و مکانیک یکی از انواع نقشه در ساختمان سازی است که با نقشه معماری تفائت بسیاری دارد،نقشه برق و مکانیک بعد از تایید نقشه کشی ساختمان طراحی می شود؛به دلیل اینکه این نقشه ،نقشه مهمی محسوب می شود باید توسط شخصی باتجربه صورت گیرد.

طراحی نقشه برق و مکانیک
نقشه فاز 2 برق و مکانیک طراحی نقشه برق و مکانیک یکی از انواع نقشه در ساختمان سازی است که با نقشه 2 نقشه فاز معماری تفاوت بسیاری دارد،نقشه برق و مکانیک بعد از تایید نقشه کشی ساختمان طراحی می شود .
طراحی نقشه برق
در طراحی نقشه برق باید به ظرفیت فیوز ها توجه داشت، محل قرار گیری فیوز ها در ساختمان ها متفاوت یک شخص با تجربه و حرفه ای باید فیوز ها را در جایی قرار دهد که مطابق با استاندارد های آن باشد، فردی که متخصص باشد می داند که هر یک از وسیله های برقی را در کجا قرار می دهد و در ذهن خودش سیم کشی ساختمان را انجام می دهد.
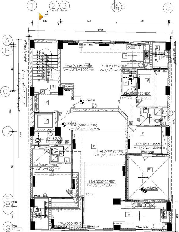
نقشه های تاسیسات الکتریکی
در این نوع نقشه ها این نقشه ها شامل موارد زیر می باشد:
- سیستم روشنایی
- سیستم اعلام حریق
- سیستم دوربین مداربسته
- نقشه کلید و پریز
- سیستم دیاگرام ها
- آنتن
- سیستم آسانسور
- سیستم تلفن
- هم بندی ارت در فوندانسیون
- سیستم پریز ها
- سیستم تابلو ها (مانند کنتور ها)
نمونه پلان فاز دو تاسیسات الکتریکی
طراحی نقشه مکانیک
نقشه مکانیک به منظور سیستم گرمایشی و سرمایشی ساختمان ها طراحی می شود تا در مصرف انرژی صرفه جویی شود و فضای با آرامشی را برای شما به وجود بیاورد.
طراحی نقشه مکانیکی
نقشه های مکانیکی شامل موارد زیر است:
- تعیین سیستم گرمایشی و سرمایشی ساختمان ها
- تعیین لوله های گاز
- تعیین محل لوله های گاز
- دیاگران قائم سیستم آبرسانی و طراحی آن
- دیاگرام قائم سیستم سرمایشی و گرمایشی و طراحی آن مانند شوفاژ، شومینه، پکیج، کوندانسور
- دیاگرام قائم سیستم دفع فاضلاب و ظراحی آن
نمونه پلان فاز دو تاسیسات مکانیکی
اطلاعاتی که باید در نقشه های تاسیسات برقی داشته باشد
- نام کارفرما
- عنوان پروژه
- آدرس ملک
- زیر بنا
- پلاک ثبتی
- مقیاس
- تاریخ طراحی تاسیسات الکتریکی
- اسم دفتر مهندسی
- نام طراح نقشه
- نام و تایید ناظر
- نام وتایید سازمان نظام مهندسی
- شماره نقشه ها
انواع طراحی نقشه برق و مکانیک
طراحی نقشه برق و مکانیک در واقع نوعی طراحی فنی ساختمان هست که جهت تامین سیم کشی و روشنایی ساختمان ها استفاده می شود ،دز این نفشه ها تمامی ارتباط ها بین کلید و پریز ها ، تجهیزات برقی ،سیم کشی برق تاسیسات ،توضیحات فنی و چگونگی نصب آن کاملا مشخص است
استاندار هایی که باید در طراحی نقشه برق و مکانیک رعایت کرد
در طراحی نقشه های برق و مکانیک باید یکسری استاندارد هایی رعایت نمود که در ادامه به آن می پردازیم:
رعایت سطح مقطع سیم ها در سیمکشی
سطح مقطع سیم ها با یک دیگر متفاوت است به طور مثال در سیستم های روشنایی باید سطح مقطع سیم ها 5.1 میلیمتر ، سطح مقطع سیم های اصلی برق 4 میلیمتر و سیم های پریز و کولر آبی باید 5.2 میلیمتر باشد.
انتخاب انشعاب های مناسب
انشعاب ظرفیت کنتور ها باید ظرفیت مناسبی داشته باشد زیرا این امر باعث می شود تا درصورتی که ولتاژ افزایش یافت ولتاژ برق در ساختمان افت کاهش پیدا نکند و وسیله های حفاظتی قطع نشود؛ در ساختمان ها برای افزایش ظریب اطمینان تعداد انشعابات ساختمان را بالا
نکات نقشه پریز برق ساختمان
یکی از بخش های مهم در نقشه های برق تعیین مکان های پریز های ساختمان ها هست،این نقشه باید کاملا طبق اصول طراحی بشه ،معمولا در ساختمان ها از جعبه تقسیم استفاده نمی شود زیرا باعت از بین رفتن نمای ساختمان می شود در صورتی که مجبور به نصب جعبه تقسیم شدید آن را 30 تا 50 متری از سقف نصب کنید.

چطور نقشه های برق و مکانیکی طراحی کنیم؟
نرم افزار های زیادی هستند که میتوانید از آن ها استفاده کنید و بیشتر از نرم افزار اتوکد استفاده می شود ،نرم افزار اتوکد مزیتی که نسبت به رقبای خودش داره دسترسی آن به آیکون ها و فرمولات است که شما می توانید یا از طریق کلیک بر روی آیکون ها و یا با نوشتن کد های کوتاهی می توانید به آن ها دترسی داشته باشید.
مزایا ی کار با نرم افزار اتوکد
- ترسیم سریع
- مدل سازی بدون مرز
- دقت بالا
- ابزار های فراوان
- ارتباط با نرم افزار های دیگر مانند اکسل و …
معایب کار با نرم افزار اتوکد
- نمی توان به عنوان دستیار طراح درنظر گرفت
- جدا کشیدن هر بخش در نقشه های ساختمان
- شناسایی نکرذن خطا های احتمالی
- وقت گیر بودن عمل زراحی و ویرایش در نرم افزار اتوکد
- نبود ویژگی هایی مانند نرم افزار bim
نرم افزار BIM چیست؟
BIM مخفف کلمه ی Bulding Information modeling که به اطلاعات موجود در ساختمان ها می پردازد، نرم افزار های BIM در دنیا نام های مختلفی دارند مانند Vico ، Digital Project ، MagiCAD ، ArchiCAD ، Bently و … که در ایران بیشتر از نرم افزار های Revit و TeklaStructure استفاده می شود.
از نرم افزار TeklaStructure توسط مهندسان سازه استفاده می شود که در آن برای محاسبه و تهیه الگوی ساخت بهره می برند و از نرم افزار Revit و AechiCad توسط مهندسان معمار برای ترسیم و تصویر سازی اولیه پروژه های استفاده می شود.
مهمترین کاربرد نرم افزار های BIM
- برنامه ریزی اولیه پروژه
- طراحی حجمی و کانست های معماری
- تهیه جزئیات اجرایی
- آنالیز و محسابات سازه،انرژی ،تاسیسات
- ارائه دقیق مقادیر ، زنجیره تامین مصالح و تجهیزات پروژه
- تجهیز کارگاه
- کاربرد در نحوه تخریب پروژه
- مستند سازی استاد و مدارک به صورت یکپارچه
مزایا استفاده از نرم افزار های BIM
- ارائه مدل 3 بعدی دقیق همراه بانک اطلاعاتی کامل
- کیفیت بهتر ساخت ساز
- ارائه خدمات بهتر به کارفرمایان
- طراحی پایدار ، تجزیه و تحلیل دقیق پروژه
- شناسنامه فنی ملک و مستندسازی تمام مراحل ساخت
- وجود بانک اطلاعاتی کامل به جهت شناخت دقیق پروژه و فرایند سازی لرزه ای
هلدینگ ساختمانی سپنتا با ارائه خدمات فنی و مهندسی از جمله طراحی نقشه برق و مکانیک در این مقاله سعی داشته تا شما را با طراحی و انواع نقشه برق و مکانیک آشنا سازد، جهت کسب اطلاعات بیشتر و استفاده از خدمات مشاوره رایگان همین حالا با ما تماس بگیرید.




کامنتی ثبت نشده است